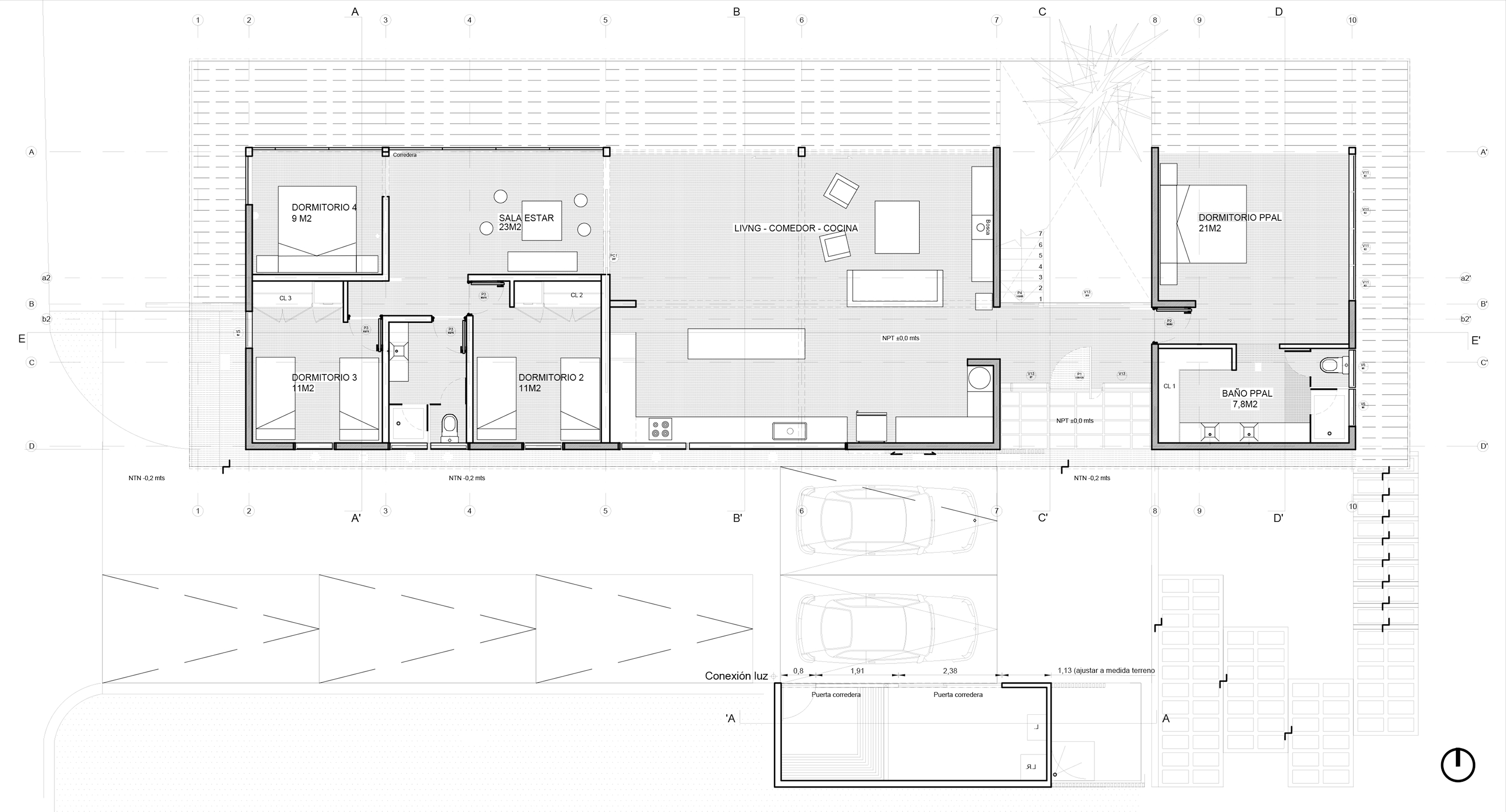
Casa H5 Aguas Claras AXONOMETRICA PLANTA 1ER NIVEL PLANTA ZOCALO Ubicación: Aguas Claras, Cachagua | Año: 2019 - 2020 | Mt2 construidos: 220 Anuncio publicitarioShare this:TwitterFacebookMe gusta esto:Me gusta Cargando...